Доступность ссылки

Вода – на бумаге: «Роскосмос» опреснит море в Крыму?


Коллаж
Коллаж

Российские власти, вопреки публичным заявлениям о нецелесообразности опреснения морской воды для водоснабжения Крыма, продолжают разрабатывать этот проект. Исполнителей не называют, оберегая их от международных санкций. Но Крым.Реалии стало известно, что к процессу привлечена структура «Роскосмоса». Московский исследовательский центр имени Келдыша уже имеет макет завода по опреснению морской воды в Крыму. Крым.Реалии стали известны подробности проекта и его исполнители.

Российский глава Крыма Сергей Аксенов в конце прошлого года объявил, что организации для строительства в Крыму опреснителя морской воды определены, но не стал называть их, чтобы уберечь от международных санкций.

«Уже процессы все запущены, я нахожусь со всеми коллегами в контакте. Не могу в рамках того, что санкционный режим присутствует, пока называть организации, которые будут строить опреснитель. Но организации все с именем. На территории России такие проекты не реализовывались», – заявил он журналистам.

Сергей Аксенов
Сергей Аксенов

В Министерстве ЖКХ российского правительства Крыма утверждают, что уже «проведена работа с рядом компетентных организаций по выполнению укрупненного расчета строительства сооружений опреснительной станции производительностью 20 тысяч кубометров в сутки». Чиновники рассчитывают на то, что проекты строительства опреснительных установок включат в федеральную целевую программу социально-экономического развития полуострова (ФЦП).

Крым.Реалии стали известны подробности планов по опреснению морской воды на полуострове.

Крыму – от «Роскосмоса»

В декабре прошлого года федеральный Исследовательский центр имени Келдыша в Москве начал искать исполнителя для изготовления «макета завода опреснения морской воды в Крыму в масштабе 1:250».

Закупка осуществлялась «вследствие аварии, иных чрезвычайных ситуаций природного или техногенного характера, непреодолимой силы, при необходимости срочного медицинского вмешательства, а также для предотвращения угрозы возникновения указанных ситуаций», говорится на российском портале госзакупок.

Московский Центр Келдыша является структурой «Роскосмоса», выполняет научно-исследовательские и опытно-конструкторские работы, производит ракетно-космическую технику, а также продукцию социально-экономического назначения, говорится на сайте предприятия.

Центр, в частности, работает над ракетно-космическим двигателестроением, ракетно-космической энергетикой, системами и элементами ракетно-космических комплексов, нанотехнологиями и водородной энергетикой, испытывает ракеты и ракетные снаряды, летательные аппараты и двигатели для них.

Государственный научный исследовательский центр имени Келдыша в Москве
Государственный научный исследовательский центр имени Келдыша в Москве

В этом институте утверждают, что имеют опыт создания опреснительных установок. В частности, в 1993 году его разработчики создали «высокоэффективные выпарные рекомпрессионные установки для очистки солесодержащих сточных вод и получения питьевой и дистиллированной воды из соленой», а в 2004 году – ввели в строй завод по опреснению морской воды производительностью до 20 тысяч кубометров в сутки в городе Актау (Казахстан).

На данный момент в этом научном центре оказывают услуги по разработке систем подготовки питьевой и технической воды, а также очистки сточных вод. Его специалисты выполняют работы от проектирования до монтажа и пуско-наладки оборудования, а также создают экспериментальные установки малой производительности, которые полностью моделируют крупномасштабный промышленный процесс.

На сайте научного центра представлены образцы мобильной опреснительной установки. Кроме того, там утверждают, что способны создать завод по производству пресной воды объемом в пять миллионов кубометров в год (13,6 тысяч кубометров в сутки) по технологии обратного осмоса и на основе комплектующих российского производства.

Мы пытались связаться с Исследовательским центром имени Келдыша, но по телефонам, указанным на официальном сайте, нам не ответили. Редакция направила в центр информационный запрос, но ответа на момент выхода материала не получила.

Крым.Реалии также пытались связаться с уполномоченным по контролю и надзору за проектом создания макета опреснительного завода в Крыму, но он на звонки не ответил. Редакция готова позднее опубликовать позицию всех упомянутых лиц и организаций по поводу этого проекта.

Кто «создал» завод для Крыма

Согласно тендерной документации, услуга создания макета была куплена у единственного поставщика – московского ООО «Монолит-М». Заявки от других поставщиков для участия в тендере не принимались.

ООО «Монолит-М», по данным федеральной налоговой службы, зарегистрировано в 2017 году в Москве. Основной профиль предприятия – деятельность рекламных агентств. Оно также производит строительные конструкции и изделия из дерева, бумаги и картона. Принадлежит фирма физическому лицу Михаилу Черкасову. Он владеет в Москве еще несколькими компаниями, которые предоставляют консалтинговые услуги.

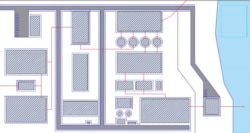
По условиям договора, срок окончания работ по производству макета опреснительного завода для Крыма истек 19 декабря 2020 года. Согласно условиям контракта, макет завода должен включать в себя масштаб зданий и сооружений, общей территории, водной поверхности, проектных зданий «с максимальной проработкой элементов в соответствующем масштабе».

На выставочном макете также должен быть имитирован процесс движения воды по территории, а с помощью светодиодной динамической ленты с разными цветами показана степень ее очистки.

В документации торгов приводится и графический вид будущего крымского опреснительного завода, хотя и без пояснений.

Схема завода по опреснению морской воды в Крыму
Схема завода по опреснению морской воды в Крыму
По договору мы сделали абсолютно небольшую задачу
Михаил Черкасов

Михаил Черкасов подтвердил Крым.Реалии, что его компания готовила макет опреснительного завода для Крыма. Но подробности проекта не раскрывает.

«По договору мы сделали абсолютно небольшую задачу. Поэтому я вам не смогу никаких подробностей и комментариев о проекте дать при всем желании. У нас просто нет этой информации, мы от заказчика ее не получали», – утверждает бизнесмен.

Опреснение: быть или не быть?

Проект опреснения морской воды в Крыму пока не нашел однозначной поддержки у российских властей. Он внесен в комплексный план мероприятий «по обеспечению устойчивого водоснабжения Крыма» до 2024 года, утвержденный российским правительством в прошлом году.

Изначально обсуждалась возможность строительства одной из опреснительных установок в Николаевке Симферопольского района. Но уже после утверждения программы в рядах российской власти усомнились в целесообразности проекта опреснения, который оценен в несколько миллиардов рублей.

Бочка с привозной водой на окраине Симферополя, сентябрь 2020 года
Бочка с привозной водой на окраине Симферополя, сентябрь 2020 года

Создание установок по опреснению морской воды в Крыму займет до двух лет и не решит проблему водного дефицита, заявил замминистра экономического развития России Сергей Назаров.

По его словам, опреснение может рассматриваться только в качестве резервного источника. На данный момент, по словам Назарова, обсуждается возможность включения этого проекта в федеральную целевую программу социально-экономического развития Крыма.

Сергей Назаров
Сергей Назаров

Ранее вице-премьер России, «куратор» Крыма в российском правительстве Марат Хуснуллин заявлял, что опреснительные установки будут построены на полуострове «в крайнем случае».

Основная же стратегия российских властей в вопросе водоснабжения аннексированного полуострова базируется на разработке местных подземных источников.

Такой же позиции придерживается президент России Владимир Путин, заявивший, что в Крыму достаточно пресной воды, которую нужно найти.

Тем не менее, крымские чиновники продолжают обещать крымчанам опреснение моря. Российский глава Крыма Сергей Аксенов рассчитывает на строительство четырех опреснителей мощностью до 20 тысяч кубометров воды в сутки. Одну из станций, по его словам, планируют построить в селе Фрунзе Сакского района. Места для их установки будут искать также в Судаке, Керчи и Феодосии. Еще один опреснитель хотят построить в Ялте.

Глава подконтрольной России администрации Ялты Янина Павленко считает строительство опреснителя воды на южном берегу приоритетным проектом и утверждает, что для него уже определен земельный участок.

Водоснабжение Крыма

Украина обеспечивала до 85% потребностей Крыма в пресной воде через Северо-Крымский канал, соединяющий главное русло Днепра с полуостровом. После аннексии Крыма Россией в 2014 году поставки воды на полуостров прекратили.

Запасы воды в Крыму пополняют из водохранилищ естественного стока и подземных источников. По заявлениям экологов, регулярное использование воды из подземных источников привело к засолению почвы на полуострове.

В 2020 году ситуация с водоснабжением в Крыму стала критической. Маленькое количество осадков и малоснежная зима привела к засухе, утверждают крымские ученые.

С конца августа графики подачи воды были введены в Симферополе, а также в Симферопольском и Бахчисарайском районах. Позже это коснулось Белогорска и Белогорского района и частично Алушты.

Подконтрольный Кремлю глава Крыма Сергей Аксенов не исключил, что Россия может признать чрезвычайной ситуацию с водоснабжением Крыма. Он также утверждал, что 2020 год стал самым засушливым за 150 лет наблюдений.​

Власти России выделили миллиарды рублей на строительство новых водоводов, водозаборов и на бурение скважин.

Мониторинговая миссия ООН в Украине настаивает, что, согласно международному праву, Россия несет полную ответственность за обеспечение населения Крыма водой.

Официальный Киев утверждает, что поставки воды на полуостров по Северо-Крымскому каналу возобновятся только после деоккупации Крыма.

FACEBOOK КОММЕНТАРИИ:

В ДРУГИХ СМИ




Recommended

XS
SM
MD
LG